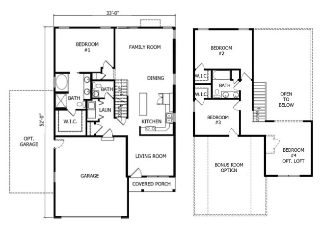
This beautiful two-story is remarkable in its exterior finishes and superior in its design. Whether you’re looking to build Craftsman or Mid-Century Modern, the Pinnacle is your next home sweet home!
We are a custom home builder. We have been building homes in Southeastern Wisconsin since 1987. You can bring us your own plans or choose from one of our many home styles. We also offer full custom design services.